Neighborhood Development
-

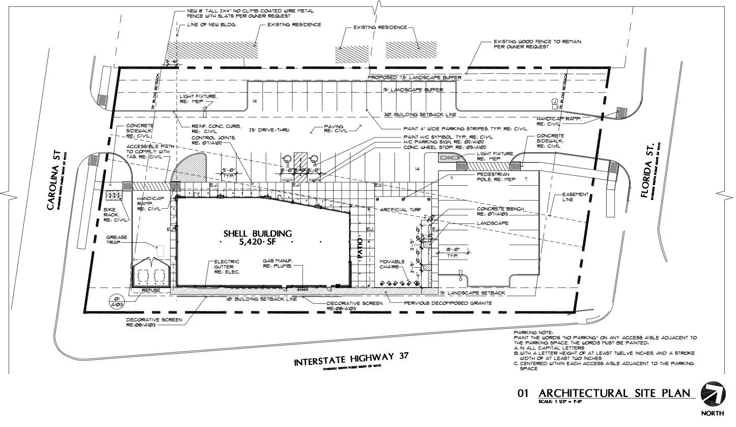
Shops at Lavaca (418 Florida St.)
The proposed Shops at Lavaca development (418 Florida St.) is scheduled to go before the Historic and Design Review Commission (HDRC) on April 15 for final design approval, following an earlier conceptual approval.
The Lavaca Neighborhood Association (LNA) previously met with representatives of the property owner and expressed support for the conceptual plans. The current design reflects feedback from LNA, the HDRC Design Review Committee, and nearby neighbors, demonstrating a collaborative effort to align the project with community expectations.
The public hearing will take place at 3:00 PM in the City of San Antonio (COSA) Board Room, located at 1901 S. Alamo.
This updated proposal should help address and alleviate community concerns—particularly regarding the possibility of a 24/7 gas station—by reflecting a plan that is more in line with neighborhood priorities.
-

418 Florida St. (at I-37)
The property owner has put forth a new commercial design that gained approval for their design from the Historic Design Review Board on Wednesday February 4, 2026. Click here for the Site Design. Click here for the Rendering.
The LNA has met with and talked to the architect and surrounding neighbors, and LNA finds this design supportable with OHP staff stipulations. Click to read the LNA’s letter of response.
Last year, the property owner had volunteered this property be transferred to the City for use as a park, which our City Councilperson has been working on ever since. We do not have information as to why this proposal changed or if it is still a possibility, but will pass this information to the membership if we learn more.
-

Labor Street Park - New Basketball Court
Construction started 11/3/2025 at Labor Street Park as part of the District 1 Parks, 2022 Bond Project. The project includes a new basketball court with bleachers and a walkway, as well as the removal of the existing baseball field.
The dog park and other areas of the park will remain open during construction.
The existing basketball court is on land owned by Opportunity Homes, and will be torn down in the near future. The new court is to take its place. We anticipate requesting additional improvements to the public park space over time to optimize the park and meet neighborhood needs.
-

Downtown Sports & Entertainment District
The downtown special district is set to host a new Spurs arena, an entertainment venue, an expanded convention center, a convention hotel, and a reimagined and reworked Alamodome.
The Lavaca neighborhood has been identified and contacted as a direct stakeholder. A representative from the City Planner’s office briefed the concept at the Lavaca Neighborhood Association General Meeting on Jan 28, 2025. The presentation can be viewed here.
The LNA is working hard to ensure our area is appropriately supported, covering everything from ADA compliant sidewalks and crosswalks, trash management, parking solutions, and more. Please feel free to submit your comments/needs to president@lavaca.net.
-

VIA Greenline - Rapid Transit
Planned to open in 2027–2028, the VIA Rapid Green Line is designed to serve more riders more efficiently along one of the city’s busiest travel corridors. The Green Line will run north-south along San Pedro Avenue, from near the San Antonio International Airport, through downtown, to the historical missions area. The Green Line will run along S. St. Mary’s Street in Lavaca.
On S. St. Mary’s Street north of W. Carolina Street, there will be a dedicated bus lane, with the exception of the block in front of Bonham Academy, which will remain mixed use lanes. South of W. Carolina Street will remain mixed use lanes.
The new bus stations in Lavaca will be located at the corners of S. St. Mary’s and Pereida, and S. St. Mary’s and W. Carolina.
Construction will occur on a rolling schedule. We have been assured that during any pauses in construction phases in Lavaca, sidewalk and driveway accessibility will be maintained.
-

South Alamo Street Construction
Sundt construction continues utility and reconstruction work (Bond Project 2017-2022) on South Alamo from Market Street to Cesar Chavez. All work is weather permitting. Business access, parking lot and pedestrian access provided.
Click the button for Maps, Project Status, Timeline
-

Southtown Aldea
Oxbow Development plans to build a residential complex at 141 Lavaca St. (starting at the corner with S. Alamo and Cesar Chavez Streets) called Southtown Aldea. It is designed with three mid-rise structures of 250 residential units, a parking garage with 600 spaces, and 40,000 square feet of food, beverage and retail space on the main level, with a European-style plaza. The word ‘Aldea’ means ‘small settlement’, and represents the design of open pedestrian flow between buildings and gathering areas, continuous to the surrounding neighborhood.
Phases of construction are expected to begin in late 2025 with completion in 2028. Plans include opening Matagorda Street to Cesar Chavez and closing Matagorda Street at Lavaca Street, to allow Southtown Aldea visitors direct access to their property without access to the adjacent residential block.
Expected timing to start construction is Q1 2026.
Click on More Info for the spring 2025 Oxbow Development presentation to Lavaca.
-

SAWS Sewer Replacement
This project will install approximately 2,820 feet of sewer main along S. Presa St., Vitra and S. St. Mary’s St. Construction is expected to begin in November 2025 and to be completed by December 2026. As this project is part of an overall package with multiple sites, construction start and duration in your immediate area will vary. While this construction is being carried out by an independent contractor, SAWS inspectors regularly visit the site to ensure progress and compliance with all regulations and codes.
The LNA is working to coordinate the smoothest possible detour during this time, access for residents and businesses along the closed street, safe bicycle routes, and deconfliction with other projects like the VIA Green Line. Please email president@lavaca.net if you need help connecting with the project manager for questions, issues, or requests during this time.
-

Victoria Commons
In 2003, Opportunity Home (formerly San Antonio Housing Authority - SAHA) received $18.7 million from the U.S. Department of Housing and Urban Development HOPE VI Program to demolish all 660 public housing units at Victoria Courts and lead a major revitalization with a mix of public housing affordable and market rate units, rental and homeownership opportunities. Opportunity Homes partnered with master developer Catellus Development Corporation to complete the redevelopment, approved on Sept. 5, 2019.
Click “More Info” for the project plan and regular updates.
-

Southtown Community Garden
The Southtown Community Garden (SCG) is located in the traffic island at Sadie, Eager, and S. Presa Streets (1002 S. Presa).
Originally launched in 2007, the SCG was overseen by a resident in affiliation with the City of San Antonio. The Memorandum of Understanding (MOU) with the City expired in spring 2022 and is now restricted to neighborhood association participation (no private signees). The LNA is unable to assume this responsibility due to legal and logistical constraints, but has advocated for the City to allow another suitable Lavaca neighborhood partner to run the garden or for the City to maintain this parcel as a clean, safe, and beautiful pocket park.
Click “Email LNA” to provide comment.
-

Lavaca Traffic & Infrastructure Lists
The LNA maintains and regularly updates lists prioritizing our traffic and infrastructure needs based on community input.
Click “See Lists” to view what is currently on file with our City Council District 1 office for:
* Crosswalk Installations
* Bike Lane Improvements
* Sidewalk Installations & Repairs
* Road Repairs
* Traffic Safety Measures
* Bus Stop ImprovementsEmail president@lavaca.net to add your input.